6

LÝ DO NÊN SỞ HỮU DỰ ÁN T&T CITY MILLENNIA

  • 1

    Vị trí “tam cận” đắc địa

    Nằm tại cửa ngõ Nam Sài Gòn, sở hữu khả năng kết nối giao thông thuận lợi, chỉ cách 15 phút đến khu đô thị Phú Mỹ Hưng, 20 phút đến trung tâm TP.HCM

  • 2

    Khu đô thị giáp 3 mặt sông

    Tâm mạch phong thủy vượng khí mang lại tài lộc, may mắn và sự thịnh vượng cho gia chủ.

  • 3

    Không gian xanh và công viên ven sông quy mô lớn nhất Nam Sài Gòn

    Sở hữu ~45ha diện tích cây xanh và mặt nước mang đến môi trường sống xanh – khỏe – lành cho cư dân tương lai.

  • 4

    Trung tâm giải trí hiện đại bậc nhất khu vực

    Dự án ứng dụng công nghệ và nghệ thuật ánh sáng vào khuôn viên và tiện ích của đô thị, nâng tầm trải nghiệm sống cho cư dân.

  • 5

    Hệ tiện ích nội khu chuẩn quốc tế

    Đầy đủ tiện ích cho nhu cầu sống, làm việc, học tập và giải trí ngay trong lòng dự án từ trường học đến bệnh viện, khu thể thao,…

  • 6

    Cam kết uy tín, pháp lý rõ ràng

    Nhà phố xây sẵn, được bảo chứng uy tín từ T&T Homes cùng các đối tác hàng đầu thế giới, đảm bảo chất lượng và tiến độ.

T&T CITY MILLENNIA KHU ĐÔ THỊ ĐẲNG CẤP BÊN SÔNG NAM SÀI GÒN

T&T City Millennia đại đô thị 267,3ha kiến tạo từ ba giá trị cốt lõi Culture – Nature – Future, không chỉ là biểu tượng bứt phá của Tây Ninh mà còn khẳng định bước tiến vững chắc trên hành trình chinh phục thịnh vượng, trở thành tâm điểm an cư lý tưởng của khu vực.

Liền kề Nam Sài Gòn, dự án sở hữu vị trí chiến lược, kết nối trực tiếp TP.HCM. Đây chính là cơ hội đầu tư sinh lời bền vững giữa làn sóng hạ tầng bùng nổ.

Hãy cùng Smartland tìm hiểu chi tiết về dự án T&T City Millennia qua bài viết dưới đây nhé!

du-an-t&t-city-millennia-rong-267ha
Tổng quan thông tin

T&T CITY MILLENNIA

T&T City Millennia với quy mô 267,3ha được kiến tạo như một biểu tượng sống động cho sự bứt phá của Tây Ninh. Dự án liền kề Nam Sài Gòn, kết nối trực tiếp tới TP.HCM qua các trục huyết mạch Nguyễn Hữu Thọ, cao tốc Bến Lức – Long Thành, đại lộ Nguyễn Văn Linh,…

Quy hoạch đồng bộ với 7.884 sản phẩm thấp tầng, 7km bờ sông rạch bao quanh và 45ha cây xanh, mặt nước, công viên, T&T City Millennia kiến tạo chuẩn mực sống sinh thái đẳng cấp, mang đến cho cư dân không gian an cư lý tưởng cùng giá trị tích lũy tài sản bền lâu.

Tên dự án T&T City Millennia
Chủ đầu tư Công ty CP Thái Sơn – Long An (là thành viên Tập đoàn T&T Group)
Đơn vị phát triển Công ty Cổ phần BĐS T&T Homes
Quy mô dự án 267,3ha
Loại hình sản phẩm Nhà phố liên kế/thương mại; Biệt thự vườn/song lập; Căn hộ chung cư
Hình thức sở hữu Sở hữu lâu dài
Thiết kế cảnh quan Belt Collins
Đơn vị thi công Newtecons
Quản lý vận hành Anabuki
Phòng kinh doanh 0916 35 78 25

VỊ TRÍ T&T CITY MILLENNIA

T&T City Millennia tọa lạc ngay mặt tiền tuyến DT826E rộng 48m – trục đường huyết mạch kết nối trực tiếp KCN Hiệp Phước và khu đô thị Phú Mỹ Hưng, Quận 7. Đây là quỹ đất vàng hiếm hoi tại Long Hậu, nơi dự án sở hữu quy mô lớn nhất và vị trí đẹp nhất khu vực.

Sở hữu lợi thế “Nhất cận thị – Nhị cận giang – Tam cận lộ”,  T&T không chỉ đắc địa về giao thương mà còn hài hòa yếu tố phong thủy, mang đến vượng khí và tài lộc cho gia chủ. T&T City Millennia giáp KCN Long Hậu, khu đô thị Nam Sài Gòn và đô thị cảng Hiệp Phước, đồng thời thừa hưởng trọn vẹn hệ thống hạ tầng khu vực đang phát triển mạnh.

  • 5 phút
    Khu đô thị GS Metrocity, đường Nguyễn Hữu Thọ, Cao tốc Bến Lức - Long Thành.
  • 10 phút
    Đến ga Metro Hiệp Phước - Bến Thành (Metro số 4).
  • 15 phút
    Đô thị Phú Mỹ Hưng.
  • 25 phút
    Trung tâm Quận 4.
  • 20 phút
    Trung tâm TP.HCM.
  • 35 phút
    Chợ Bến Thành.
  • 50 phút
    Sân bay Tân Sơn Nhất.
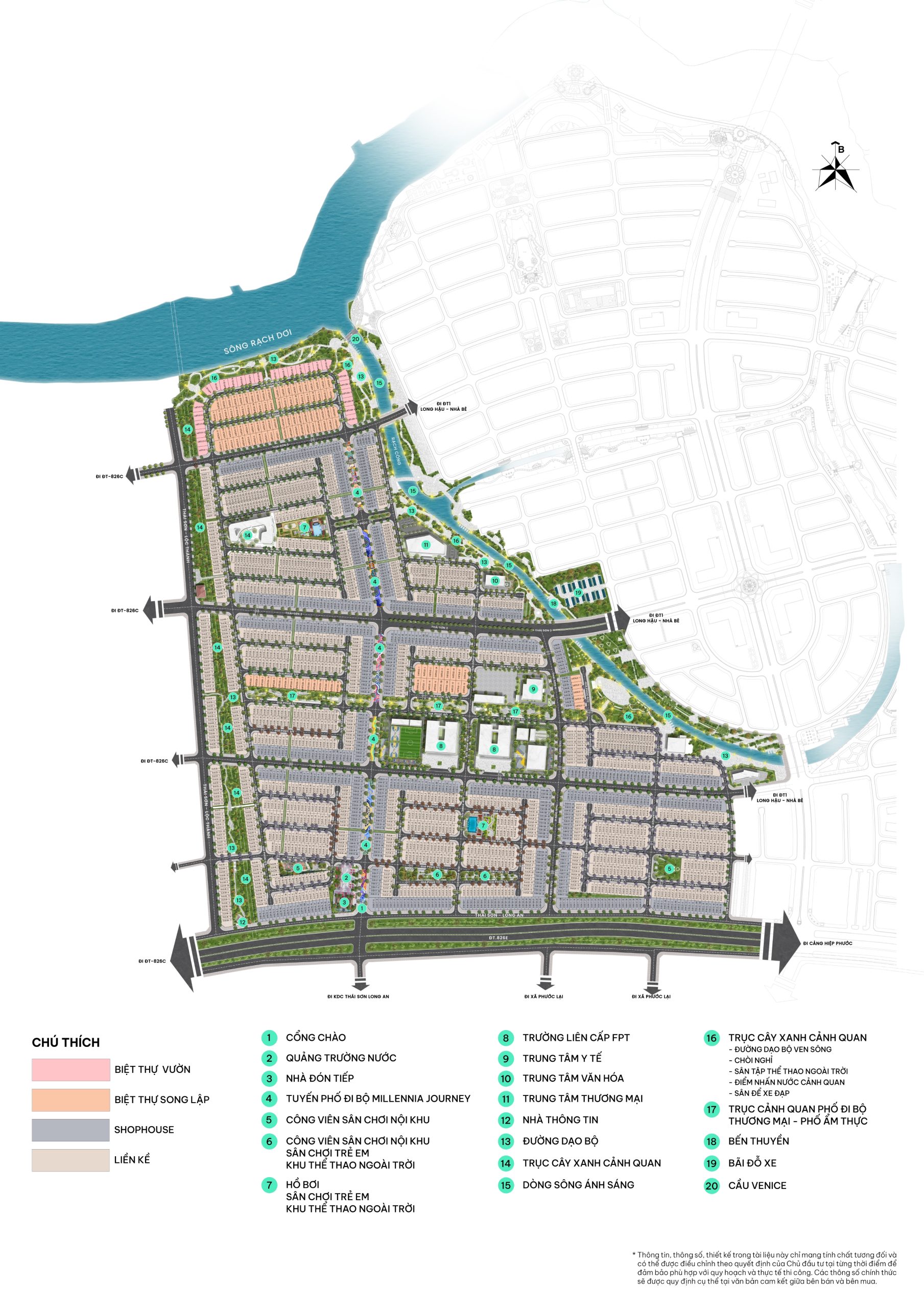
Hệ tiện ích

Đô thị nghỉ dưỡng T&T City Millennia

T&T City Millennia được quy hoạch với sản phẩm đa dạng cùng không gian sống xanh hiếm có, mang đến một môi trường sống lý tưởng cho cộng đồng cư dân văn minh, hiện đại.

  • Trường Phổ thông Liên cấp FPT: Quy mô 2,54ha đáp ứng nhu cầu học tập cho hơn 2.500 học sinh, với cơ sở vật chất hiện đại, trang thiết bị giáo dục tiên tiến.
  • Light River – Dòng sông ánh sáng: Kiệt tác xác lập kỷ lục tuyến đường thủy dài nhất tích hợp hệ thống phun sương huyền ảo cùng công nghệ trình chiếu âm thanh – ánh sáng.
  • Millennia Journey – Tuyến phố đi bộ: Nơi tái hiện những dấu ấn vàng son của hải trình khám phá phương Đông huyền thoại. Gói trọn văn hóa – ẩm thực – nghệ thuật đặc trưng từ các vùng đất trù phú Á Đông.
  • Khu vui chơi trẻ em.
  • Sân thể thao đa năng.
  • Hồ bơi hiện đại.
  • Khu BBQ ngoài trời.
  • Cung đường dạo bộ và khuông viên tập thể dục ngoài trời.

CÁC DÒNG SẢN PHẨM NỔI BẬT TẠI T&T CITY MILLENNIA

  • Nhà phố liền kề

    • Diện tích: 90m² – 120m² và 284m²
    • Giá: 54 triệu/m²
  • Shophouse

    • Diện tích: 103m² – 270m²
    • Giá trục đường 826E: 73 triệu/m²
    • Giá trục đường Thái Sơn: 65 triệu/m²
  • Biệt thự song lập

    • Diện tích: 199m² – 282m²
    • Giá: Đang cập nhật…

MẶT BẰNG PHÂN KHU STELLA

Chính sách ưu đãi

Chiết khấu Booking sớm

  • Ưu đãi 1%

Tặng phí quản lý

  • 100% 36 tháng đầu tiên.
  • 50% 24 tháng tiếp theo.

Chiết khấu thanh toán

  • KH thanh toán sớm ưu đãi lên đến 13%
  • Ngân hàng hỗ trợ 80% – Lãi suất 0% trong vòng 24 tháng
chinh-sach-ban-hang-t&t-city-millennia

CHỦ ĐẦU TƯ T&T HOMES

T&T Homes là thành viên của Tập đoàn T&T Group, là đơn vị phát triển bất động sản uy tín hàng đầu Việt Nam với triết lý “Tinh hoa thế giới – Bản sắc Việt Nam”. Từ thuở sơ khai, T&T Homes đã triển khai nhiều dự án quy mô trải dài khắp cả nước như: T&T DC Complex, T&T 02 Phạm Ngọc Thạch, T&T Hàng Bài (Hà Nội); T&T Victoria (Nghệ An); T&T Phước Thọ (Vĩnh Long); T&T Phố Nối (Hưng Yên); T&T Twin Tower (Đà Nẵng),…

Các dự án của T&T Homes luôn được triển khai chuẩn chỉnh về pháp lý, đảm bảo tiến độ, hoàn thiện với chất lượng vượt mong đợi và nhanh chóng đạt tỷ lệ cư dân lấp đầy cao. Vì thế, T&T City Millennia tiếp tục là lựa chọn sáng giá, mang đến cơ hội an cư – đầu tư bền vững cho những ai tìm kiếm một không gian sống đẳng cấp và giá trị gia tăng vượt trội.

SMARTLAND - ĐƠN VỊ PHÂN PHỐI CHÍNH THỨC DỰ ÁN T&T CITY MILLENNIA

Với hơn 21 năm kinh nghiệm trong lĩnh vực bất động sản, Smartland tự hào là đơn vị phân phối chính thức dự án T&T City Millennia. Sở hữu đội ngũ chuyên viên am hiểu thị trường, hệ thống tư vấn chuyên nghiệp cùng uy tín đã được khẳng định qua hàng loạt dự án thành công, Smartland cam kết mang đến cho quý khách hàng những sản phẩm bất động sản chất lượng, thông tin minh bạch và dịch vụ tận tâm.

smartland-chinh-thuc-phan-phoi-du-an-t&t-city-millennia-1
icon phone